Für unseren Service speichern wir Cookies und andere Informationen auf Ihren Geräten und verarbeiten damit einhergehend Ihre personenbezogene Daten bzw. greifen auf solche zu. Dies hilft uns, um das Nutzungserlebnis unserer Services stetig zu verbessern, sowie personalisierte Empfehlungen und Werbung auszuspielen. Hierfür bitten wir um Ihre Einwilligung. Sie können diese jederzeit – auch später noch ändern oder widerrufen. Mehr erfahren Sie in der Datenschutzerklärung

Einstellungen oder ablehnen
Alles Akzeptieren

Whg.4

Neubau eines Mehrfamilienhauses mit 6 WHG in KFW 40+ Ausführung mit Fahrstuhl.

Das Haus verfügt über eine Photovoltalkanlage und als Heizgerät wird eine Luftwärmepumpe verbaut.

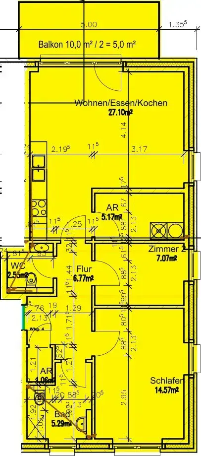
Die Wohnung im 1. Obergeschoss mit Balkon und einem PKW Stellplatz in der Tiefgarage

3 Zimmer Wohnung , Erstbezug

Beschreibung

Die Wohnung ist mit einer hochwertigen Einbauküche inkl. Geschirrspüler und Elektrogeräten ausgestattet.

In den Wohn-und Schlafräumen ist ein hochwertiger Vinylbelag mit weißen Holzfußleisten verlegt.

Das in grau geflieste Tageslichtbadezimmer verfügt über eine bodengleiche Dusche.

Der Flur und der Abstellraum haben einen Fliesenbelag.

Die Treppenhausreinigung, die Vegetationspflege der Allgemeinflächen, die Gehwegreinigung und der Winterdienst sin in den Nebenkosten enthalten.


Aufteilung der Wohnung:

Wohnraum mit offener Küche und Zugang zum Balkon

Schlafzimmer

Kinderzimmer

Bad mit Dusche und WC

Gäste WC

Flur

Abstellraum mit Anschluss für eine Waschmaschine

Zweiter Abstellraum


Ausstattung:

Fußbodenheizung

Böden: Fliesenboden, Vinylbelag

Fenster: Kunststofffenster mit elektrischen Rolladen

Zustand: Erstbezug, voraussichtlich bezugsfertig Mai 2023

Lage

Google
Map data ©2026 GeoBasis-DE/BKG (©2009), Google
Map data ©2026 GeoBasis-DE/BKG (©2009), Google
This page can't load Google Maps correctly.
Do you own this website?

Ähnliche Angebote

;
BESbswy